Kursy walut: 1 EUR = 4.69 PLN; 1 USD = 4.4 PLN [więcej...]
Darmowa bramka SMS
Język: polski english

* Profil podstawowy

  • Firma
  • Oferty (0)
  • Produkty (2)
  • Firm Rank(0)
  • Kontakt

 


*Ta firma posiada tylko prezentacje podstawową.
Poznaj możliwości profilu Sprawdzony partner oraz Eurofirma

Marina Mesquita - Sociedade de Mediação Imobiliária, Lda

[Portugalia]Building Plot

Prześlij produkt znajomemu Dodaj produkt do schowka

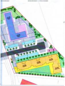
22000 m2 plot in the Carcavelos region, served by Lisbon / Cascais highway and the beautiful sea front avenue to Estoril/Cascais.Project composed by two distinct areas #1 residencial including 32 apartments in enclosed condominium and a second area for commercial and services 4 floors + 2 underground floor for parking. This space is licensed to become an old age home, medical clinic, shopping centre, etc. Very good acess to public transport and roads to Lisbon and Cascais. The surrounding area is very good and the need for a commercial stucture is welcomed. We can supply you with more information and plants of the project. Ready to build.
Zadaj pytanie

 

Dodatkowe informacje:

Miejsce produkcji:Carcavelos - Portugal
Marka:Building plot
Cena:4000000 EUR
Komentarz do ceny:to be agreed on contract

 

Sprawdź produkty w kategorii: Nieruchomości ->Deweloperzy

 
     
 

Marina Mesquita - Sociedade de Mediação Imobiliária, Lda

Ulica:Rua Engº D. Antonio Castelo Branco, 214 E
Miasto:Cascais
Kod pocztowy:2750-154
Kraj:Portugalia
Telefon: +351 96 2876482
Faks: +351 21 4846946

Osoba kontaktowa

Imię i Nazwisko: Jose Mesquita
Telefon stacjonarny: +351 21 4846946
Telefon komórkowy: +351 919797459
Zadaj pytanie

 
     


Jak prawie wszystkie strony internetowe również i nasza korzysta z plików cookie. Zapoznaj się z regulaminem, aby dowiedzieć się więcej. Akceptuję